返回
海能知识库
网站首页
美食营养
游戏数码
手工爱好
生活家居
健康养生
运动户外
职场理财
情感交际
母婴教育
生活知识
知识问答
搜索
CAD2019如何用矩形和直线绘制菱形
时间:2026-02-16 04:39:10
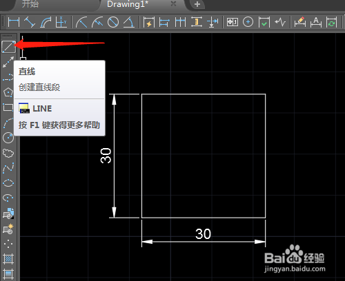
1、1. 打开CAD软件,点击矩形工具。
2、2. 按尺寸绘制一个正方形。
3、3. 点击绘图工具中直线,分别捕捉中心绘制四条斜线组成菱形。
4、4. 选定正方形和尺寸,点击删除,完成操作。
CAD怎么绘制六边形?
cad环形阵列如何使用
cad圆角快捷键
cad画圆弧的方法
cad怎么旋转复制
为你推荐:
范成大简介
怎么改扩展名
有声小说大全
心理图片大全
杜牧简介
灯谜大全及答案儿童
小小说怎么写
宝马x6怎么样
搞笑故事大全
孕妇早餐食谱大全
© 2026 海能知识库
信息来自网络 所有数据仅供参考
有疑问请联系站长 site.kefu@gmail.com